• 网站首页
  • 公司简介
  • 产品展示
  • 产品目录
  • 企业动态
  • 联系我们
  • 电子邮局

产品展示

  • 智能润滑
  • 电动润滑泵
  • 手(脚)动润滑泵
  • 加油泵
  • 双线分配器
  • 单线分配器
  • 换向阀、操纵阀及其附件
  • 稀油润滑装置及稀油站
  • 稀油润滑元件
  • 管件部分
  • 油气润滑元件

联系方式

电话:0513-83325673 传真:0513-83119878 手机:13862978163 地址:江苏省启东市汇龙镇中央河中路691号E-mail:13862978163@126.com
 
XYZ-GZ型整体式稀油站(0.4MPa)
一、使用条件
本产品适用于冶金、矿山、建材、能源、交通等行业中机械设备的稀油润滑,工作介质为粘度等级N22~N460(相当于IS0 VG22~460)的工业润滑油。
整体式稀油站的特点为全部零部件均布置在油箱上,性能参数基本上和XYZ-G型相同,但将流量大于125L/min的五种规格稀油站亦制成整体式,因而这些较大的油站仍可实现整体吊装,无地脚螺栓,使安装特别方便;特别适合于稀油占地面积受到限制的场合;但稀油站上面和四周需留足够的维修高度和面积;由于油泵在油箱顶上,因此选用的油泵应有足够的吸入高度,特别当润滑油粘度高,油温低时更要引起重视。
整体式稀油站的供油压力≤0.4MPa,过滤精度0.08~0.12mm(低粘度时允许采用小值),冷却水温度≤30℃,压力为0.2~0.4MPa,冷却器进油温度为50℃,通过冷却器后温降≥8℃;采用电加热器提高油温。
 
二、工作原理
与XYZ-G 型≤125L/min的稀油站相同,亦采用电加热器提高油温。
 
三、结构特点
亦与XYZ-G型≤125L/min的稀油站相同,但采用磁网一体化进行回油过滤后,均取消了外加的磁过滤器;仪表盘(板)亦与XYZ-6G~125G相同。
 
四、技术参数
型号
公称流量
L/min
供油压力
MPa
供油温度
℃
油箱容积
m3
加热功率
Kw
冷却面积
m2
冷水耗量
m3/h
XYZ-250GZ
250
≤0.4
40±3
3
24
12
22.5
XYZ-290GZ
290
3.2
16
26
XYZ-315GZ
315
3.5
20
28
XYZ-350GZ
350
4.2
24
21.6
XYZ-400GZ
400
4.5
24
36
型号
过滤面积
m2
过滤精度
mm
电机功率
Kw

出油口DN2
mm

回油口DN1
mm
总图代号
XYZ-250GZ
0.84
0.08
7.5
65
125
NR X 2.01.1.00
XYZ-290GZ
11
150
NR X 2.01.2.00
XYZ-315GZ
11
80
NR X 2.01.3.00
XYZ-350GZ
1.31
0.12
11
NR X 2.01.4.00
XYZ-400GZ
11
NR X 2.01.5.00
 
五、外形尺寸
XYZ-GZ 型稀油站外形尺寸
型号
DN1
DN2
DN3
L
B
H
L1
L2
L3
L4
L5
XYZ-250GZ
125
65
65
1900
2100
1020
24
272
450
220
440
XYZ-290GZ
150
65
65
1900
2200
1020
24
292
450
220
440
XYZ-315GZ
150
80
65
2000
2200
1120
24
292
350
220
440
XYZ-350GZ
150
80
80
2100
2200
1120
24
397
250
220
440
XYZ-400GZ
150
80
80
2100
2200
1120
24
397
250
220
440
型号
L6
L7
L8
B1
B2
H1
H2
H3
H4
H5
H6
XYZ-250GZ
660
152
960
2535
218
1260
1365
350
230
840
105
XYZ-290GZ
1065
152
1365
2635
218
1260
1365
350
230
840
105
XYZ-315GZ
1475
152
1775
2635
218
1360
1465
450
230
940
105
XYZ-350GZ
1835
147
2175
2735
218
1260
1465
450
230
940
105
XYZ-400GZ
1835
147
2175
2735
218
1360
1465
450
230
940
105
 
六、原理图
图1-3-2 XYZ-GZ 型稀油站原理图
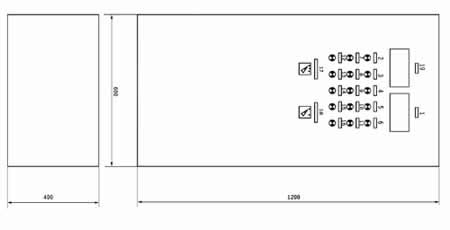
七、仪表盘
和XYZ-6G~125G型稀油站的仪表盘(板)相同
序 号
标牌文字
1
出口油温
2
1#泵工作
3
2#泵工作
4
加热器工作
5
主机运行
6
可驱动主机
7
压力过低
8
供油口温高
9
油 位 低
10
压差过高
11
主机油温高
12
低压泵起动
13
低压泵停止
14
加热器起停
15
试 响
16
消除警报
17
1#为主*单独*2#为主
18
中控/机旁
19
油箱油温
图1-3-3 XYZ-GZ型稀油站电控外形图
 
 
   
   
网站首页 公司简介 产品展示 产品目录 企业动态 联系方式
电话:0513-83325673 传真:0513-83119878  手机:13862978163         智能润滑
地址:江苏省启东市汇龙镇中央河中路691号 邮编:226200  E-mail:13862978163@126.com 
版权所有:南通沃尔驰石化工程有限公司