• 网站首页
  • 公司简介
  • 产品展示
  • 产品目录
  • 企业动态
  • 联系我们
  • 电子邮局

产品展示

  • 智能润滑
  • 电动润滑泵
  • 手(脚)动润滑泵
  • 加油泵
  • 双线分配器
  • 单线分配器
  • 换向阀、操纵阀及其附件
  • 稀油润滑装置及稀油站
  • 稀油润滑元件
  • 管件部分
  • 油气润滑元件

联系方式

电话:0513-83325673 传真:0513-83119878 手机:13862978163 地址:江苏省启东市汇龙镇中央河中路691号E-mail:13862978163@126.com
 
R1902型电气控制箱(20MPa)
一、概述
  R1902 型电气控制箱,用于自动控制一套由U- ※※ AL 型环式电动润滑泵与补脂泵组成的干油润滑系统,即在DEA-2L型电控箱的基础上,增加了补脂泵自动控制部分。能对系统中的供油点现实自动供油,供油完成后,自动停止。油箱中液位低于一定限度时,补脂泵自动启动,注满油后,自动停止。
  控制箱能发出“供油时间延长”、“加油泵超载”、“超负荷运转”等故障信号,箱内设有一组外部接点,可向主机或主控室发送系统运转状况(停止、运转、故障)信号。

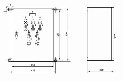
二、外形尺寸
三、标牌符号及文字
序号
符号
标牌文字
序号
符号
标牌文字
1
HL1
电源
6
HL4
油箱液位低
2
HL2
干油站工作
7
SB1
任意运转
3
HL3
加油泵工作
8
SB2
故障复位
4
HL4
供油时间延长
9
SB3
加油泵启动
5
HL5
超负载运转
10
SB4
加油泵停止
四、R1902型电气控制箱接线端子图
网站首页 公司简介 产品展示 产品目录 企业动态 联系方式
电话:0513-83325673 传真:0513-83119878  手机:13862978163         智能润滑
地址:江苏省启东市汇龙镇中央河中路691号 邮编:226200  E-mail:13862978163@126.com 
版权所有:南通沃尔驰石化工程有限公司